Hospital Zonal General de Agudos Dr. Enrique Erill

Belén de Escobar, Escobar, Prov. de Buenos Aires, Argentina
DATOS GENERALES

Comitente: Fundación Pérez Companc
Ubicación: Eugenia Tapia de Cruz s/n, entre Mateo Gelves y San Lorenzo, Belén de Escobar, Escobar, Prov. de Buenos Aires
Anteproyecto y proyecto: 2011/13
Dirección de obra: 2012/13
Empresa Constructora: DICLAP S.A.

Superficie terreno: 3.507 m2
Superficie cubierta: 6.050 m2
Superficie construida: Etapa 1 – 1.034 m2
Camas: 104

Intervención en el patrimonio.
Estudios preliminares, relevamiento de necesidades, verificación y ajuste de programa médico arquitectónico,

Plan Maestro
Etapa 1: Croquis preliminares, Anteproyecto, Proyecto y Dirección de Obra.

PROGRAMA

Plan Maestro:

Internación: 80 camas, UTI: 8 camas, UCI: 3 camas, Centro de Trauma: 7 camas, Guardia: 5 camas, Consultorios Externos de Clínica Médica y especialidades, Servicio de Imágenes, Tomógrafo, Seriógrafo, y Equipos de RX de rutina, Ecografías, Mamógrafo, Laboratorios de rutina automatizados y de Biología Molecular, Bacteriología, Laboratorio de Toxicología, Hemoterapia, Banco de sangre, Esterilización Central, Centro Quirúrgico y Obstétrico, Neonatología, Maternidad, Vacunatorio, Servicio Social, Farmacia, Servicios Generales, Morgue.

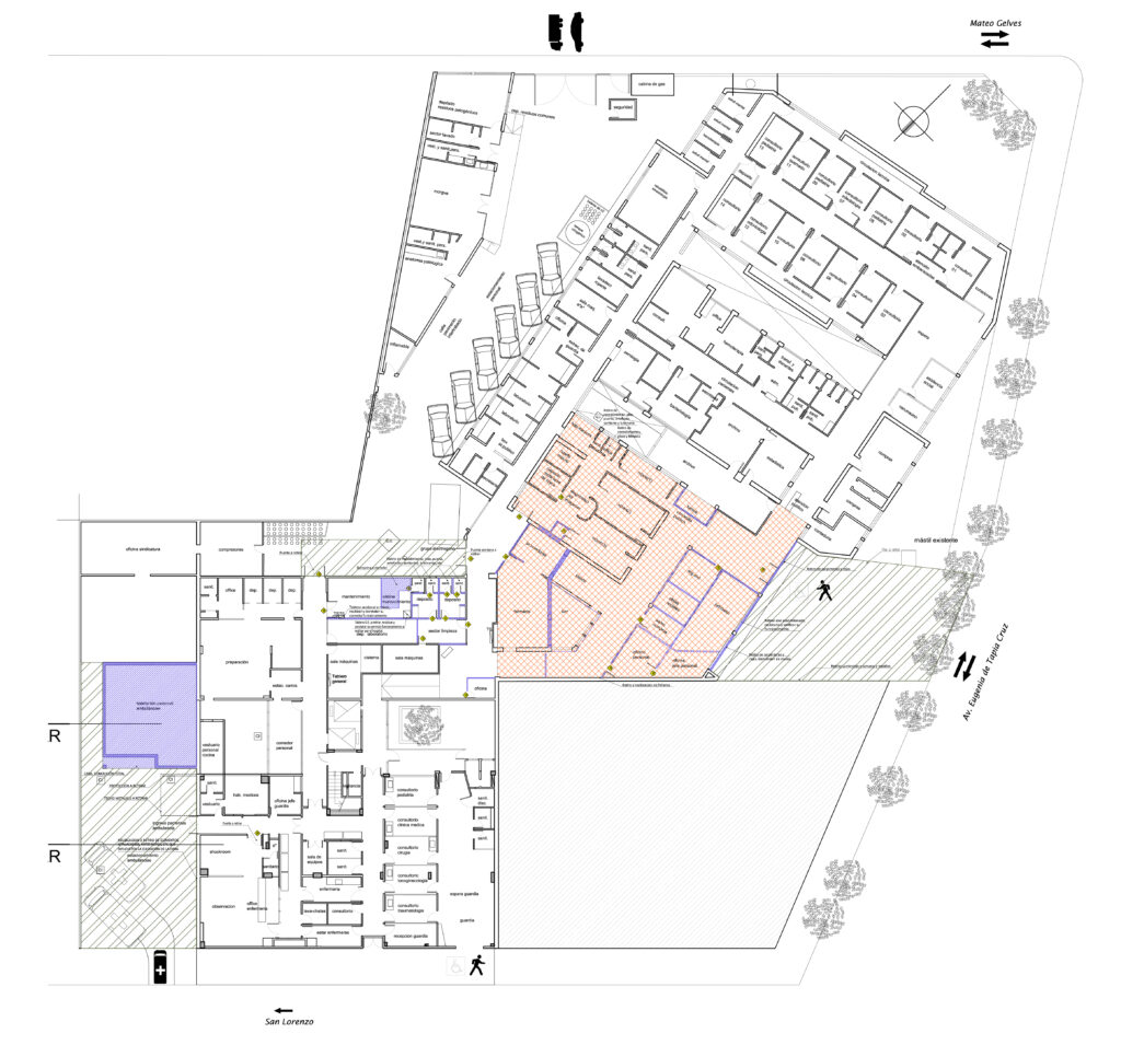
Obra: Etapa 1:

Refuncionalización y ampliación:

Hall de acceso, Diagnóstico por imágenes (instalación de Tomógrafo y Mamógrafo), Farmacia, Observación de Guardia, UTI, UCI, Circulación técnica interna y Centro de Trauma.

CARACTERÍSTICAS

Obra: Etapa 1:

El Hospital Zonal General de Agudos “Dr. Enrique Erill”, perteneciente a la Región Sanitaria V, se encuentra dentro del tejido urbano de la ciudad de Belén de Escobar, Escobar, a unas 15 cuadras de la Ruta Nacional N° 9 (Panamericana), salida Escobar.

Los trabajos ejecutados incluyeron la demolición de algunos elementos existentes en distintas zonas del Hospital y la construcción de 3 sectores de obra nueva. El Hospital continuó prestando servicios durante toda la construcción de la obra.

Se amplió la Guardia para la creación del Centro de Trauma y se creó una Circulación técnica cubierta para poder trasladar pacientes desde la Guardia hasta Diagnóstico por Imágenes.

Se reubicó y rediseñó la Farmacia. Se amplió Diagnóstico por Imágenes, instalándose un Tomógrafo y un Mamógrafo nuevos, incorporando: Sala de espera, Recepción, Vestidores y Sala de interpretación de imágenes.

Se jerarquizó la entrada del Hospital generado un nuevo Hall de acceso con doble altura y marquesina.

En Terapia Intensiva se incorporaron puestos de internación y 1 Habitación de aislado y se creó una UCI de 3 camas, 1 de ellas para un aislado.