Hospital Puente Alto

Santiago de Chile, Chile
DATOS GENERALES

Comitente: Ministerio de Obras Públicas, Chile

Concurso: de antecedentes: 2012

Ubicación: Avenida Eyzaguirre 2150, Comuna de Puente Alto, Santiago de Chile, Chile

Anteproyecto y Proyecto: 2013/2014

Superficie terreno: 43.276 m2

Superficie cubierta: 95.000m2

Camas: 398

 

Anteproyecto de Arquitectura, Estructura, Eficiencia Energética y criterios de especialidades.

En asociación con estudios de arquitectura de EEUU y de Chile. Nombre de la sociedad TRICONSUL

PROGRAMA

Hospital de alta complejidad. Consta de 2 sectores:

  • Diagnostico terapéutico y apoyo clínico: Diagnóstico por imágenes, Laboratorio, Anatomía patológica, Pabellones quirúrgicos: 10, Salas de Partos, SEDILE, Central de Esterilización. Unidad de Medicina Transfusiones, Farmacia, Morgue.
  • Hospitalización: Hospitalización progresiva: Médico quirúrgico adultos: 246 camas, Médico quirúrgico infantil: 46 camas; Pensionado: 10 camas; Unidad de Paciente crítico: Adultos: 36 camas y Pediátricos: 12 camas. Corta Estadía psiquiátrica: 48 camas.
CARACTERÍSTICAS

Los objetivos generales arquitectónicos han sido:

  • Lograr una infraestructura nueva, moderna e innovadora.
  • Atender los requerimientos de la población usuaria con calidad de vida.
  • Proveer un Diseño sistematizado que apoye la estandarización constructiva.
  • Sistemas y materiales respetuosos del medio ambiente.
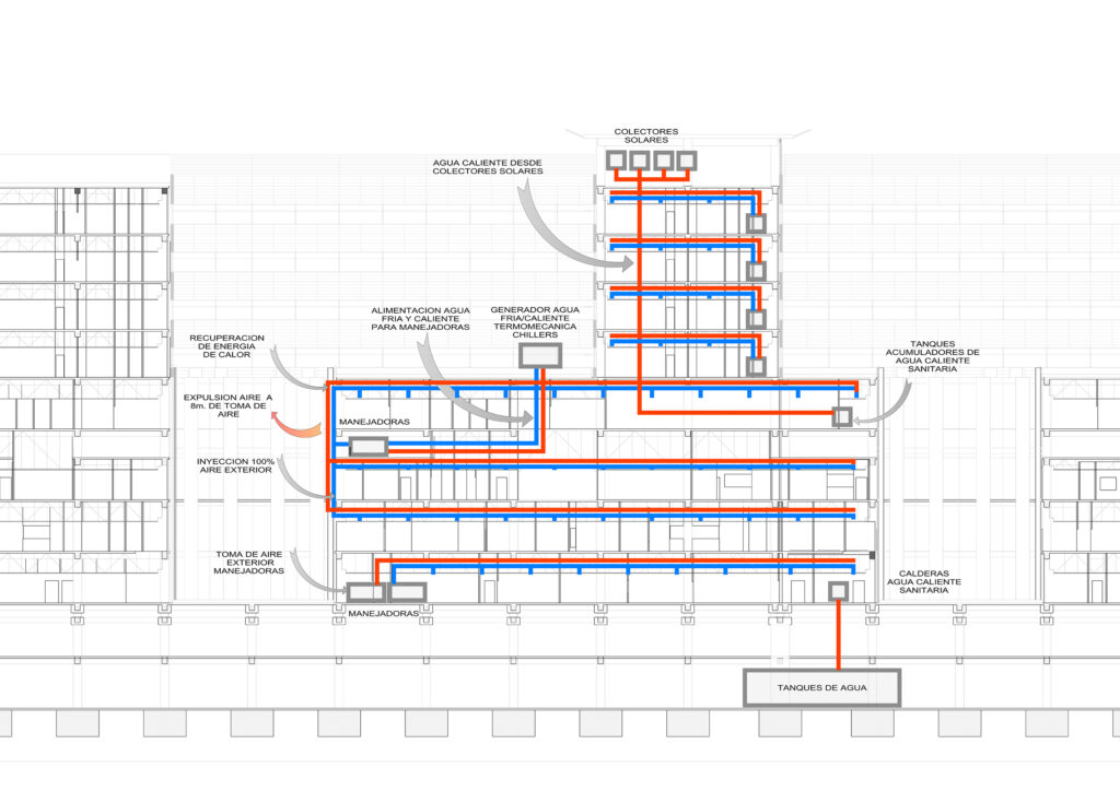
  • Arquitectura e ingeniería orientadas a la eficiencia energética.

El conjunto está conformado por dos sectores diferenciados. Por un lado contemplando el edificio de Atención Ambulatoria –CRS- que no forma parte de esta consultoría. Por lo tanto se ha desarrollado el Hospital complementándose con el CRS, conformando una plaza central que provee vistas e iluminación al conjunto en su totalidad. El basamento del edificio hospitalario donde se ubican las funciones relacionadas con Diagnóstico y Apoyo Clínico toma la misma altura del CRS, delimitando volumétricamente la plaza central articuladora.

A su vez las torres de Hospitalización emergen de este gran volumen otorgándole al conjunto escala e identidad.