Oficinas para el Ministerio de Relaciones Exteriores y Culto

Ciudad Autónoma de Buenos Aires, Argentina
DATOS GENERALES

Comitente: UNOPS
Concurso de antecedentes: 2018/19
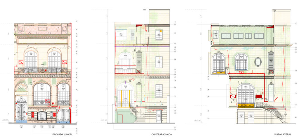
Ubicación: Juncal 847/51
Anteproyecto y Proyecto: 2019
Superficie terreno: 509 m2
Superficie cubierta: 1.529 m2

Intervención en edificio con carácter patrimonial.
Desarrollo del Proyecto ejecutivo para la reparación integral del edificio situado en calle Juncal 847/ 851 CABA según anteproyecto de Arquitectura del MREC

PROGRAMA

Conservación y restauración de un petit-hotel para oficinas del Ministerio de Relaciones exteriores y culto.

CARACTERÍSTICAS

Al respecto, cabe precisar las distintas instancias respecto a grados o modalidades de intervención sobre una obra de carácter histórico patrimonial, a saber: Preservación, Conservación, Restauración y Mantenimiento (entendiendo que la primera y la última están por fuera de los alcances de los trabajos aquí indicados).
• La preservación constituye el conjunto de medidas cuyo objetivo es prevenir el deterioro a los inmuebles. Se trata de una acción (o, más precisamente, un conjunto de acciones) que antecede a las intervenciones de Conservación y/o Restauración, procurando que, con estas acciones, las alteraciones se retarden todo lo posible. Implica la realización de operaciones en forma continua orientadas a mantener al edificio en óptimas condiciones.
• La conservación consiste en la aplicación de procedimientos técnicos cuya finalidad es la de detener los procesos de alteración o impedir que se produzcan nuevos deterioros en un edificio histórico. Su objetivo es garantizar la permanencia de dicha obra como patrimonio arquitectónico.
• La restauración, entendida como un grado de intervención, está constituida por todos aquellos procedimientos técnicos que buscan restablecer la unidad formal y la lectura de la obra de arquitectura y todos sus componentes, respetando su historicidad, sin producir “falsos”.
• El mantenimiento está constituido por acciones cuyo fin es evitar que un inmueble ya intervenido vuelva a deteriorarse, por lo que se realizan después de que se hayan concluido los trabajos de conservación o restauración (según sea el grado de intervención).

En este sentido se parte de la idea de realizar distintos trabajos en función de brindar al edificio un nuevo ciclo de vida, acorde a las necesidades actuales en términos de seguridad, habitabilidad, sustentabilidad y accesibilidad.

Al margen de los atinentes a la refuncionalización propiamente dicha, nos referiremos en este apartado a los trabajos atinentes a liberación, conservación, restauración y adecuación tecnológica de componentes originales.
En este sentido, el presente proyecto se ajusta al principio de mínima intervención -compatible con el cumplimiento de los objetivos de la refuncionalización- a efectos de reducir su impacto en relación con los componentes originales. Por tanto, se procederá a:
• Realizar trabajos de consolidación estructural acordes a los estudios correspondientes.
• Efectuar una limpieza acorde a cada componente, en base a las pruebas realizadas, antes de acometer (salvo particularidad en contrario) trabajos de restauración.
• Conservar todos aquellos componentes originales que se encuentren en buen estado y puedan seguir prestando su función original